What's included:

Floor Plans, Elevations, Window and Door Schedules, Sections and Details

What's not included:

Structural, Mechanical or Electrical

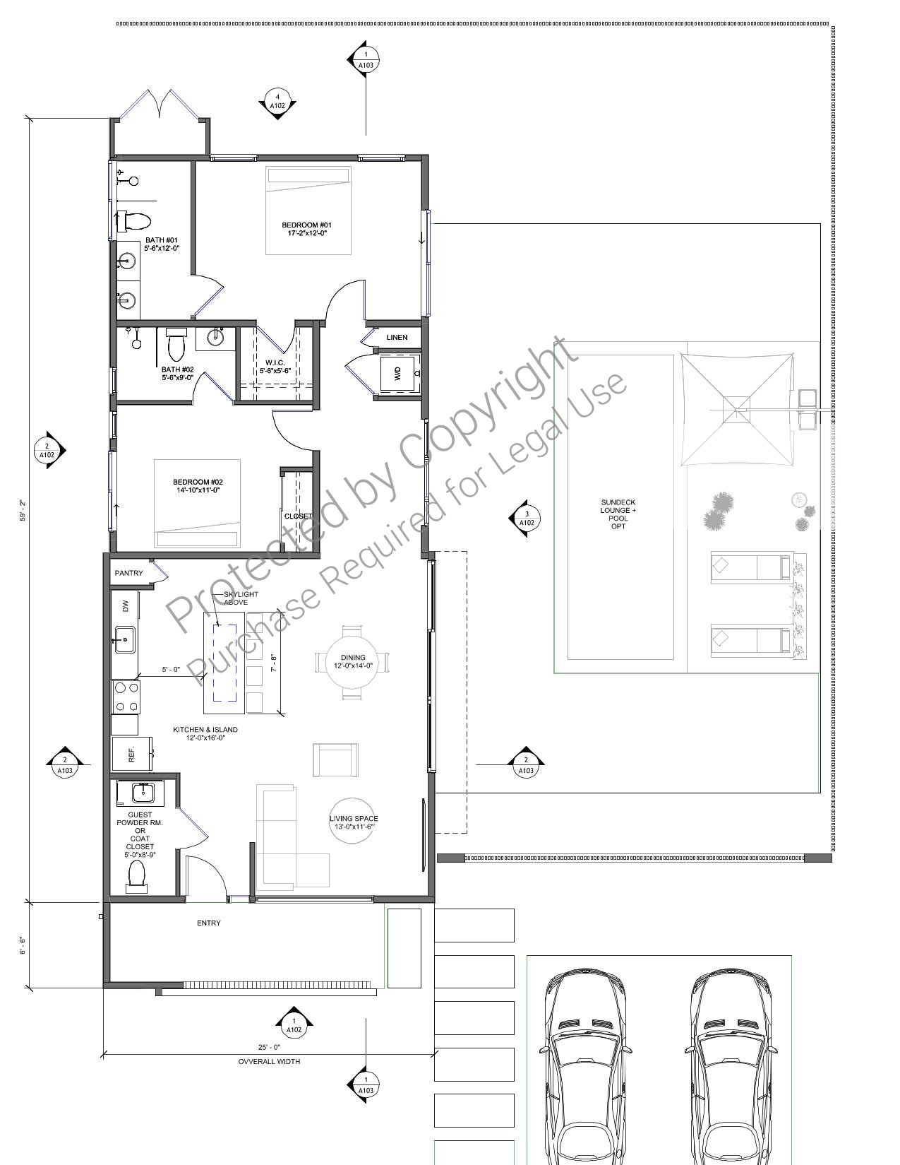
Plan SFH-100-0072

MODERN SINGLE FAMILY HOME - SUSTAINABLE FEATURES AND OPTIONS

Starting at $1850

  • 1380 Heated Heated S.F.
  • 2  Beds Beds
  • 2 bath Bath
  • 0 basementBasement
  • 1 basement Floors
  • 2 car No. Of Cars
  • None car Car Garage

  • Design Style
  1. Modern

  • Design Style
  1. Modern

Description

Modern 1,380 Square feet Single Family Residence, 2 Bedrooms + 2 Bathrooms on a single level with optional Guest Powder Room or Entry Coat Closet. Optional Pool and Lounge. 
Floor Plan has future expansion options in mind, whether it is an attached Carport, to a Roof Top Lounge, to a second floor addition with 2 more bedrooms and a bathroom.

What's included:

Floor Plans, Elevations, Window and Door Schedules, Sections and Details

What's not included:

Structural, Mechanical or Electrical