What's included:

  1. Floor Plan(s)
    • Detailed layout of all rooms and spaces
    • Dimensions of each area (e.g., living room, kitchen, bedrooms)
    • Placement of doors, windows, and fixtures
  2. Roof Plan
    • Design and layout of the roof
    • Slope/pitch details and drainage points
    • Roofing material specifications

What's not included:

  1. Site Plan
    • Specific to your property, showing the home’s placement on the lot, grading, and drainage.
    • Requires a surveyor and local adjustments.
  2. Mechanical Plans (HVAC)
    • Heating, ventilation, and air conditioning system layouts.
    • Typically provided by local HVAC professionals based on regional requirements.
  3. Plumbing Design Details
    • Exact pipe layouts, water supply, and sewer connections.
    • Requires a licensed plumber for customization.
  4. Electrical Engineering Plans
    • Detailed wiring diagrams, load calculations, or panel schedules.
    • Customization done by electricians per local codes.
  5. Material Specifications
    • Lists for finishes, fixtures, flooring, countertops, or paint colors.
    • Selections are homeowner-specific.
  6. Structural Engineering Stamp
    • A structural engineer’s approval may be required depending on local codes.
  7. Energy Calculations/Compliance Reports
    • Energy code compliance documentation (e.g., REScheck or Title 24 for California).
    • Typically performed by energy consultants.
  8. Permits & Permit Drawings
    • Permits must be obtained separately from local building departments.
  9. Construction Cost Estimates
    • Exact labor and material cost breakdowns are not included.
  10. Landscaping Plans
  • Design for outdoor landscaping, hardscaping, or irrigation systems.
  1. Furniture Layouts
  • Detailed placement of furniture and décor.
  1. Appliance Specifications
  • Specific brands or models for appliances (e.g., oven, refrigerator).
  1. Custom Design Changes
  • Changes to the plan after purchase typically require additional fees for revisions.

These items generally need to be coordinated separately with contractors, engineers, or consultants to meet local building codes and preferences.
 

Plan SFH-100-0027

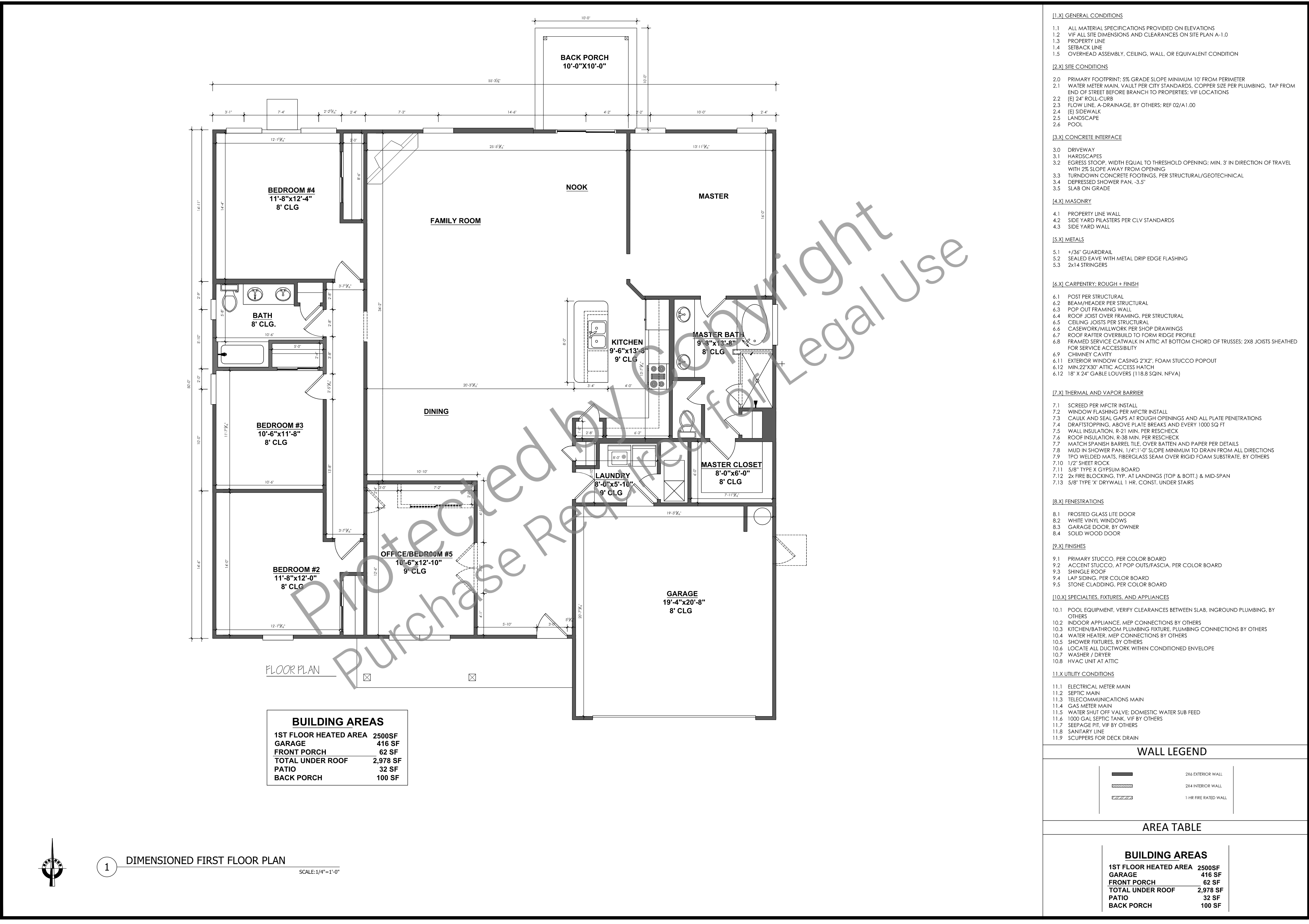
Ranch-Style Home - 2,500 SF - 1-floor - Draft

Starting at $750

  • 2500 Heated Heated S.F.
  • 5  Beds Beds
  • 2 bath Bath
  • 0 basementBasement
  • 1 basement Floors
  • 2 car No. Of Cars
  • Attached car Car Garage

  • Design Style
  1. Ranch

  • Design Style
  1. Ranch

Description

Discover the perfect blend of spacious living, modern design, and ultimate comfort in this 2,500-square-foot ranch-style home. Designed for families, couples, or individuals who appreciate single-level convenience, this home offers an elegant yet practical layout with open-concept living areas and well-defined private spaces.
Open-Concept Living Spaces
At the heart of this stunning ranch home lies a large, open-concept living room, dining area, and gourmet kitchen. Perfect for entertaining or relaxed family living, this area is bathed in natural light thanks to expansive windows and features a cozy fireplace as its focal point.

  • Gourmet Kitchen: Includes a central island with seating, extensive counter space, and a walk-in pantry for abundant storage.
  • Dining Flexibility: A dedicated breakfast nook offers a cozy dining option, while the formal dining area connects seamlessly to the living room.
  • Indoor-Outdoor Flow: Sliding glass doors lead to a covered patio, perfect for alfresco dining or entertaining in all seasons.

Luxurious Bedrooms & Bathrooms
The layout prioritizes privacy and comfort with 4 spacious bedrooms strategically arranged across the home:
  • Master Suite Retreat: Located in its private wing, the master suite features a spa-like ensuite bathroom with dual vanities, a soaking tub, a walk-in shower, and a massive walk-in closet.
  • Secondary Bedrooms: Three additional bedrooms are situated on the opposite side, each with generous closet space and easy access to full shared bathroom.
This thoughtful design ensures both privacy for the master suite and convenience for guests or family members.

Functional Features for Modern Living
Every detail of this home supports a comfortable, organized lifestyle:
  • Home Office/Study: A versatile space near the entryway, ideal for remote work or creative projects.
  • Laundry Room: Spacious and practical, with dedicated areas for folding, sorting, and storage.
  • Mudroom: Conveniently located off the garage entrance, with built-in storage to keep things tidy.

Expansive Garage & Outdoor Space
The attached 3-car garage provides ample parking and additional storage space, while the backyard extends the living space outdoors with:
  • A covered patio (standard) for relaxation or entertaining.
  • Optional deck upgrades to enhance your outdoor enjoyment.

Key Highlights
  • Bedrooms: 4 (Private Master Suite + 3 Spacious Secondary Bedrooms)
  • Bathrooms: 2 Full Bathrooms (1 Ensuite + 1 Shared)
  • Living Areas: Open-concept living room, dining area, and gourmet kitchen
  • Extras: Dedicated home office, laundry room, and mudroom
  • Garage: 2-car attached garage
  • Outdoor Features: Covered patio with an optional deck for outdoor living

Why Choose This Ranch-Style Home?
This thoughtfully crafted home is perfect for those who value the simplicity of single-level living, paired with elegant design and modern amenities. Whether you love hosting gatherings, working from home, or simply enjoying a spacious, well-designed space, this ranch-style floor plan offers the ultimate in comfort and style.
Make this dream home a reality today—perfect for growing families, retirees, or anyone seeking effortless, luxurious single-story living.
 

What's included:

  1. Floor Plan(s)
    • Detailed layout of all rooms and spaces
    • Dimensions of each area (e.g., living room, kitchen, bedrooms)
    • Placement of doors, windows, and fixtures
  2. Roof Plan
    • Design and layout of the roof
    • Slope/pitch details and drainage points
    • Roofing material specifications

What's not included:

  1. Site Plan
    • Specific to your property, showing the home’s placement on the lot, grading, and drainage.
    • Requires a surveyor and local adjustments.
  2. Mechanical Plans (HVAC)
    • Heating, ventilation, and air conditioning system layouts.
    • Typically provided by local HVAC professionals based on regional requirements.
  3. Plumbing Design Details
    • Exact pipe layouts, water supply, and sewer connections.
    • Requires a licensed plumber for customization.
  4. Electrical Engineering Plans
    • Detailed wiring diagrams, load calculations, or panel schedules.
    • Customization done by electricians per local codes.
  5. Material Specifications
    • Lists for finishes, fixtures, flooring, countertops, or paint colors.
    • Selections are homeowner-specific.
  6. Structural Engineering Stamp
    • A structural engineer’s approval may be required depending on local codes.
  7. Energy Calculations/Compliance Reports
    • Energy code compliance documentation (e.g., REScheck or Title 24 for California).
    • Typically performed by energy consultants.
  8. Permits & Permit Drawings
    • Permits must be obtained separately from local building departments.
  9. Construction Cost Estimates
    • Exact labor and material cost breakdowns are not included.
  10. Landscaping Plans
  • Design for outdoor landscaping, hardscaping, or irrigation systems.
  1. Furniture Layouts
  • Detailed placement of furniture and décor.
  1. Appliance Specifications
  • Specific brands or models for appliances (e.g., oven, refrigerator).
  1. Custom Design Changes
  • Changes to the plan after purchase typically require additional fees for revisions.

These items generally need to be coordinated separately with contractors, engineers, or consultants to meet local building codes and preferences.