What's included:

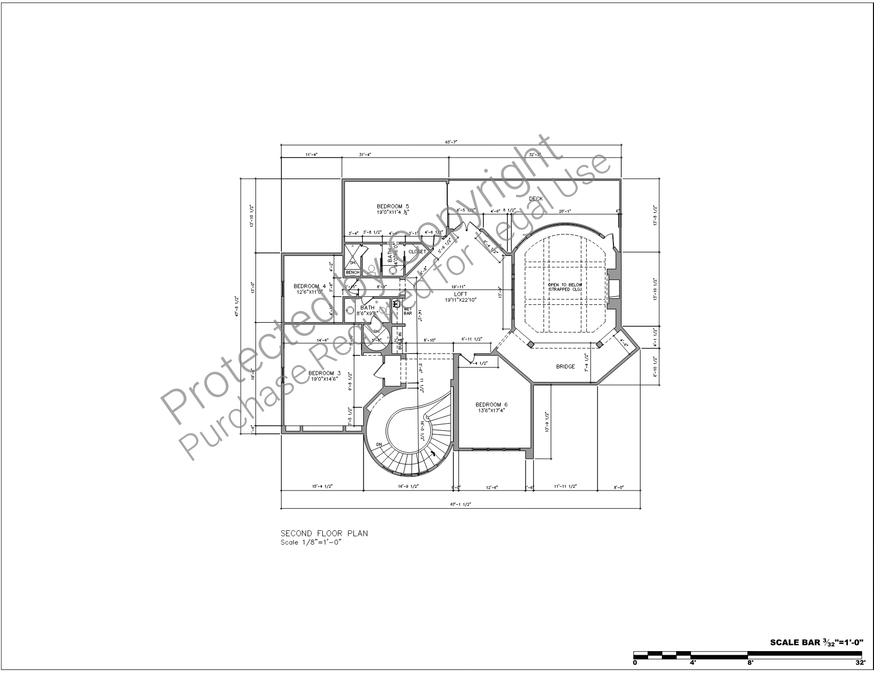
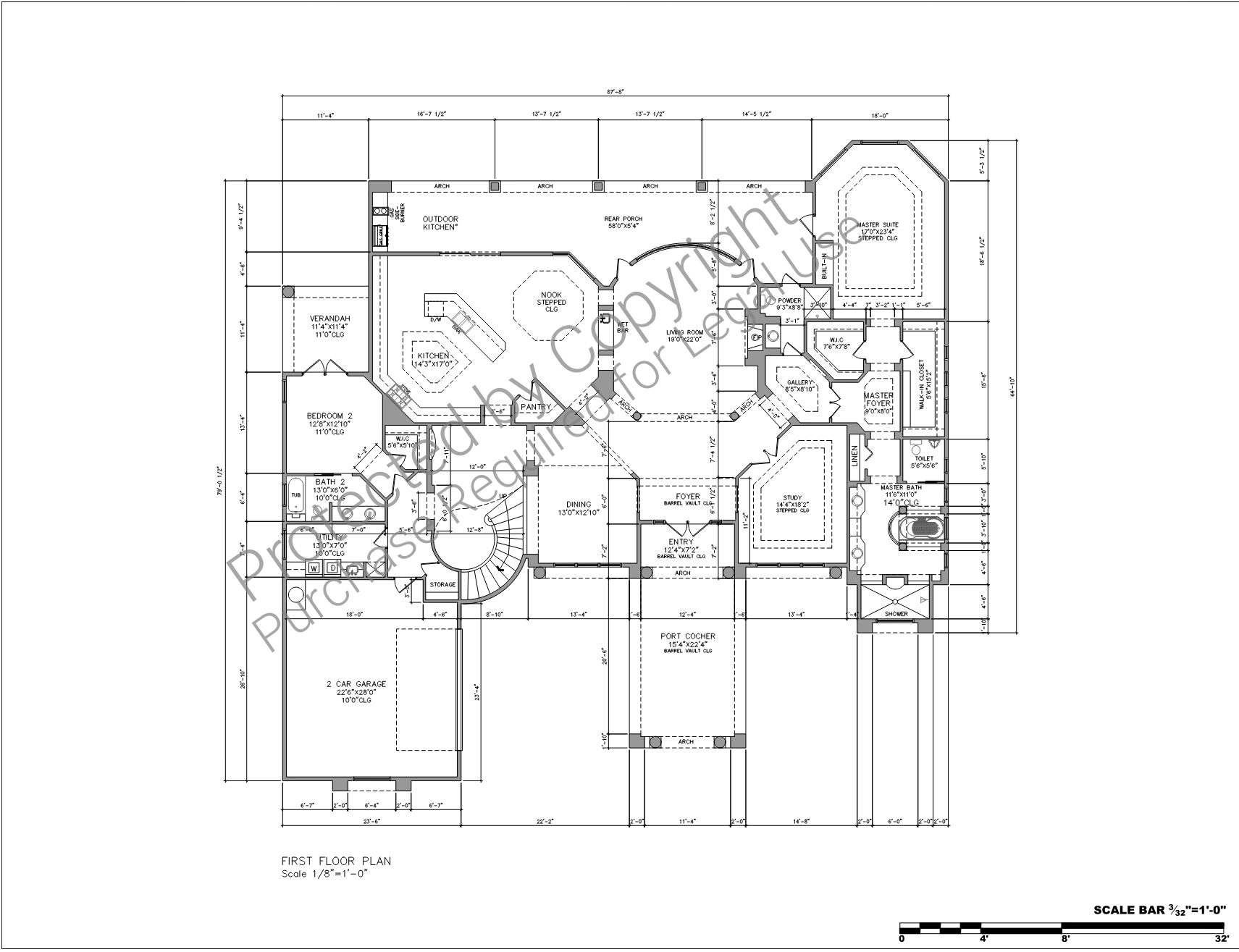
Floor Plans

  • Detailed layouts of both floors, showcasing room dimensions, functionality, and flow.
  • Includes placement of bedrooms, ensuite bathrooms, living spaces, and the formal dining area.
·  Roof Plan
  • A complete design of the roof structure, including details for materials, slopes, and drainage.
·  Four Elevations
  • Highlighting architectural details, such as stucco finishes, archways, and rooflines
  • Full exterior views of the home from all four sides (front, rear, and both sides).

What's not included:

  1. Structural Engineering Plans
    • Calculations and detailed structural designs for foundations, beams, columns, and other load-bearing elements are not included.
  2. Mechanical, Electrical, and Plumbing (MEP) Plans
    • HVAC (heating, ventilation, and air conditioning) layouts, electrical wiring diagrams, and plumbing systems are excluded.
  3. Interior Design Specifications
    • Furniture layouts, interior finishes, material selections, and color schemes are not part of the blueprint.
  4. Landscaping Plans
    • Designs for outdoor landscaping, such as plant placement, irrigation systems, or external lighting, are not provided.
  5. Construction Details
    • Specific construction details, such as framing layouts, insulation, or material schedules, are not included.
  6. Permit Documents
    • Local building permits, approvals, or code compliance documents are not part of the package.
  7. Energy Calculations
    • Energy efficiency or sustainability reports, such as solar panel placements or insulation R-values, are not included.
  8. Site-Specific Customizations
    • Adjustments for sloped lots, specific site conditions, or local environmental factors are not covered.
  9. Appliance Specifications
    • Details on specific appliances or fixtures for kitchens, bathrooms, or utility areas are excluded.
  10. Cost Estimation
    • A breakdown of construction costs, material quantities, or labor estimates is not included.
This blueprint focuses on providing a comprehensive architectural design and layout while leaving room for customizations and additional services to meet specific project needs.
 

Plan SFH-100-0060

Mediterranean-Style Home - 7245 SF - 2-floor

Starting at $2200

  • 5585 Heated Heated S.F.
  • 6  Beds Beds
  • 4 bath Bath
  • 0 basementBasement
  • 2 basement Floors
  • 2 car No. Of Cars
  • Attached car Car Garage

  • Design Style
  1. Mediterranean

  • Design Style
  1. Mediterranean

Description

Step into the timeless charm of this luxurious Mediterranean-style home, a perfect blend of elegance and functionality. Boasting 5,585 sq. ft. of living space and a total of 7,245 sq. ft., this two-story design offers ample room for both everyday living and grand entertaining.
The home features 6 spacious bedrooms, each with its own ensuite bathroom, ensuring privacy and comfort for every family member or guest. Upon entry, a grand staircase sets a sophisticated tone, leading to open living spaces and a formal dining room designed to impress.
The heart of the home extends outdoors to a stunning courtyard framed by elegant stucco walls and classic archways, creating a serene setting for relaxation or gatherings. An attached 2-car garage provides convenience while complementing the home’s design.
Whether you're seeking a family retreat or a statement of architectural beauty, this Mediterranean blueprint offers the perfect canvas for a life of style and comfort.
 

What's included:

Floor Plans

  • Detailed layouts of both floors, showcasing room dimensions, functionality, and flow.
  • Includes placement of bedrooms, ensuite bathrooms, living spaces, and the formal dining area.
·  Roof Plan
  • A complete design of the roof structure, including details for materials, slopes, and drainage.
·  Four Elevations
  • Highlighting architectural details, such as stucco finishes, archways, and rooflines
  • Full exterior views of the home from all four sides (front, rear, and both sides).

What's not included:

  1. Structural Engineering Plans
    • Calculations and detailed structural designs for foundations, beams, columns, and other load-bearing elements are not included.
  2. Mechanical, Electrical, and Plumbing (MEP) Plans
    • HVAC (heating, ventilation, and air conditioning) layouts, electrical wiring diagrams, and plumbing systems are excluded.
  3. Interior Design Specifications
    • Furniture layouts, interior finishes, material selections, and color schemes are not part of the blueprint.
  4. Landscaping Plans
    • Designs for outdoor landscaping, such as plant placement, irrigation systems, or external lighting, are not provided.
  5. Construction Details
    • Specific construction details, such as framing layouts, insulation, or material schedules, are not included.
  6. Permit Documents
    • Local building permits, approvals, or code compliance documents are not part of the package.
  7. Energy Calculations
    • Energy efficiency or sustainability reports, such as solar panel placements or insulation R-values, are not included.
  8. Site-Specific Customizations
    • Adjustments for sloped lots, specific site conditions, or local environmental factors are not covered.
  9. Appliance Specifications
    • Details on specific appliances or fixtures for kitchens, bathrooms, or utility areas are excluded.
  10. Cost Estimation
    • A breakdown of construction costs, material quantities, or labor estimates is not included.
This blueprint focuses on providing a comprehensive architectural design and layout while leaving room for customizations and additional services to meet specific project needs.