What's included:

This Mediterranean Revival-style home package comes with a comprehensive set of plans to bring your dream home to life. Included in this package are:

  • Floor Plan: A detailed layout of the entire home, including dimensions, room arrangements, and functional spaces, ensuring every square foot is thoughtfully utilized. This plan highlights the open-concept design and key features like the vaulted ceilings, windows, and access points to patios and outdoor spaces.
  • Roof Plan: A precise depiction of the terracotta-tiled roof design, including slopes, ridges, and eaves, ensuring the authentic Mediterranean aesthetic while providing practical shading and protection.
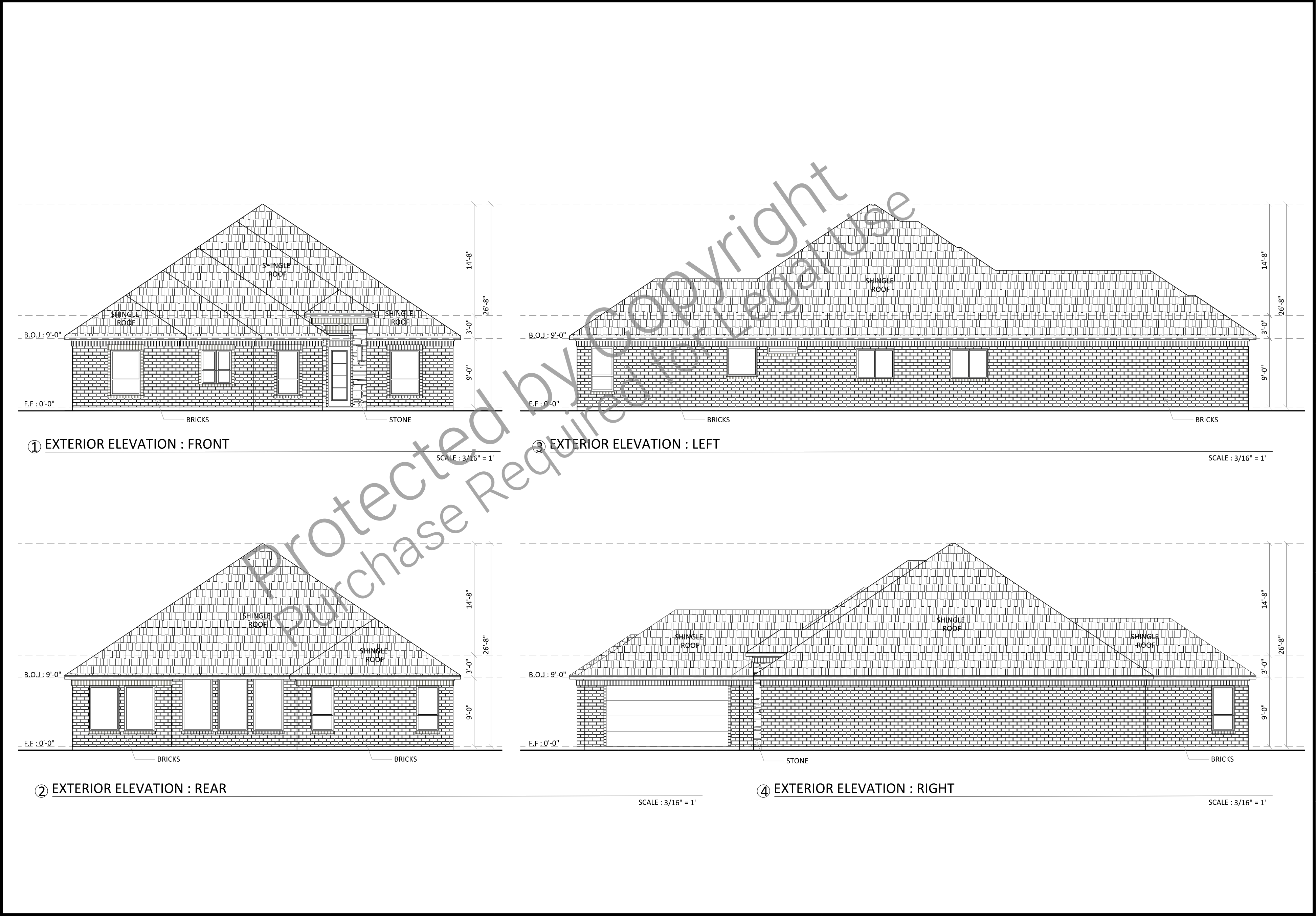
  • Four Elevations: Complete exterior views of the home from all four sides (front, rear, and both sides), showcasing the harmonious blend of rammed earth walls, arched windows, carved wooden doors, and extended eaves. These elevations provide a full understanding of the home’s architectural style and exterior finishes.
These inclusions provide everything needed for construction and visualization, making it easier for you to achieve a seamless build and a stunning final result.
 

What's not included:

The package for this Mediterranean Revival-style home provides detailed plans for construction, but the following items are not included in the purchase:

  1. Structural Engineering Plans: Site-specific structural calculations or engineering details (e.g., foundation design tailored to local soil conditions) are not included and must be provided by a licensed engineer.
  2. Mechanical, Electrical, and Plumbing (MEP) Plans: Full details for HVAC, electrical wiring, and plumbing systems are excluded. These will need to be designed according to local codes by a qualified professional.
  3. Site-Specific Adjustments: Modifications to the plans for zoning, setbacks, grading, or topographical conditions specific to your lot are not included.
  4. Permits and Permit Drawings: This package does not include the preparation of permit applications or additional documents required for submission to local building departments.
  5. Interior Design Specifications: Custom furniture layouts, paint colors, decorative finishes, and material specifications for items like cabinetry, lighting, and fixtures are not part of the plans.
  6. Landscaping Plans: While the design incorporates a central courtyard and Mediterranean-style landscaping concepts, detailed landscaping blueprints and planting schedules are excluded.
  7. Appliance and Fixture Selections: The plans do not include specific brands or models for kitchen appliances, bathroom fixtures, or other equipment.
  8. Custom Modifications: Any changes or personalization to the existing plans must be made by a professional designer or architect at an additional cost.
These exclusions allow flexibility for customization and the involvement of local professionals to ensure the home complies with regional regulations and your unique preferences.
 

Plan SFH-100-0066

Mediterranean Revival-style _ Rammed Earth - 4415 SF - 1-floor

Starting at $1450

  • 3595 Heated Heated S.F.
  • 5  Beds Beds
  • 3 bath Bath
  • 0 basementBasement
  • 1 basement Floors
  • 2 car No. Of Cars
  • Attached car Car Garage

  • Design Style
  1. Mediterranean Revival

  • Design Style
  1. Mediterranean Revival

Description

This Mediterranean Revival-style one-story home combines timeless elegance with sustainable design, offering 4,415 square feet of total space, including 3,595 square feet of thoughtfully planned living area. Crafted with a rammed earth wall system, the home exudes natural beauty, energy efficiency, and structural integrity.
The home’s design boasts 18–24-inch thick exterior rammed-earth walls for exceptional insulation and stability, while 12–16-inch interior rammed-earth walls provide both functionality and an authentic Mediterranean aesthetic. A terracotta-tiled roof, arched windows, and a serene central courtyard harmonize traditional Mediterranean elements with modern livability.
Step inside through the grand entry through a welcoming porch, where high ceilings adorned with decorative beams create a striking first impression. The open-concept living room, with large windows and a rammed earth hearth fireplace, flows seamlessly into the dining area, which offers courtyard access for a charming indoor-outdoor dining experience. The kitchen is a chef’s dream, featuring a central island with Mediterranean-style tiles, a walk-in pantry, and a cozy breakfast nook for casual gatherings.
The luxurious master suite offers a private retreat, a spacious walk-in closet, and an en-suite bathroom complete with a soaking tub, double vanity, and walk-in shower. A generously sized guest suite features courtyard access and a private bathroom, while two additional bedrooms share a well-appointed Jack-and-Jill bathroom. A quiet home office or library with built-in shelving provides the perfect space for work or relaxation. Additional practical spaces include a two-car garage with storage, a laundry room, a powder room, and a dedicated storage area.
Every material and finish reflects the Mediterranean Revival style: exposed rammed earth walls radiate natural earth tones, terracotta tiles grace the common areas, and double-glazed arched windows paired with carved wooden doors complete the home’s warm and inviting character.
This home is not just a residence but a celebration of timeless architecture, eco-friendly materials, and the Mediterranean lifestyle, making it the perfect retreat for those seeking elegance, comfort, and sustainability.
 

What's included:

This Mediterranean Revival-style home package comes with a comprehensive set of plans to bring your dream home to life. Included in this package are:

  • Floor Plan: A detailed layout of the entire home, including dimensions, room arrangements, and functional spaces, ensuring every square foot is thoughtfully utilized. This plan highlights the open-concept design and key features like the vaulted ceilings, windows, and access points to patios and outdoor spaces.
  • Roof Plan: A precise depiction of the terracotta-tiled roof design, including slopes, ridges, and eaves, ensuring the authentic Mediterranean aesthetic while providing practical shading and protection.
  • Four Elevations: Complete exterior views of the home from all four sides (front, rear, and both sides), showcasing the harmonious blend of rammed earth walls, arched windows, carved wooden doors, and extended eaves. These elevations provide a full understanding of the home’s architectural style and exterior finishes.
These inclusions provide everything needed for construction and visualization, making it easier for you to achieve a seamless build and a stunning final result.
 

What's not included:

The package for this Mediterranean Revival-style home provides detailed plans for construction, but the following items are not included in the purchase:

  1. Structural Engineering Plans: Site-specific structural calculations or engineering details (e.g., foundation design tailored to local soil conditions) are not included and must be provided by a licensed engineer.
  2. Mechanical, Electrical, and Plumbing (MEP) Plans: Full details for HVAC, electrical wiring, and plumbing systems are excluded. These will need to be designed according to local codes by a qualified professional.
  3. Site-Specific Adjustments: Modifications to the plans for zoning, setbacks, grading, or topographical conditions specific to your lot are not included.
  4. Permits and Permit Drawings: This package does not include the preparation of permit applications or additional documents required for submission to local building departments.
  5. Interior Design Specifications: Custom furniture layouts, paint colors, decorative finishes, and material specifications for items like cabinetry, lighting, and fixtures are not part of the plans.
  6. Landscaping Plans: While the design incorporates a central courtyard and Mediterranean-style landscaping concepts, detailed landscaping blueprints and planting schedules are excluded.
  7. Appliance and Fixture Selections: The plans do not include specific brands or models for kitchen appliances, bathroom fixtures, or other equipment.
  8. Custom Modifications: Any changes or personalization to the existing plans must be made by a professional designer or architect at an additional cost.
These exclusions allow flexibility for customization and the involvement of local professionals to ensure the home complies with regional regulations and your unique preferences.