What's included:

The blueprint for this Colonial-style home includes the following detailed plans and views to ensure comprehensive understanding and visualization of the design:

  1. Floor Plan: A detailed layout of the home's interior spaces, including room dimensions, furniture placement suggestions, and functional areas.
  2. Roof Plan: A precise depiction of the roof's structure, including slopes, ridges, valleys, and materials, ensuring both aesthetic appeal and structural integrity.
  3. Four Elevations:
    • Front Elevation: Showcasing the elegant Colonial-style facade with symmetrical design, classic wainscoting, and crown molding details.
    • Rear Elevation: Highlighting outdoor spaces like the covered patio and rear architectural features.
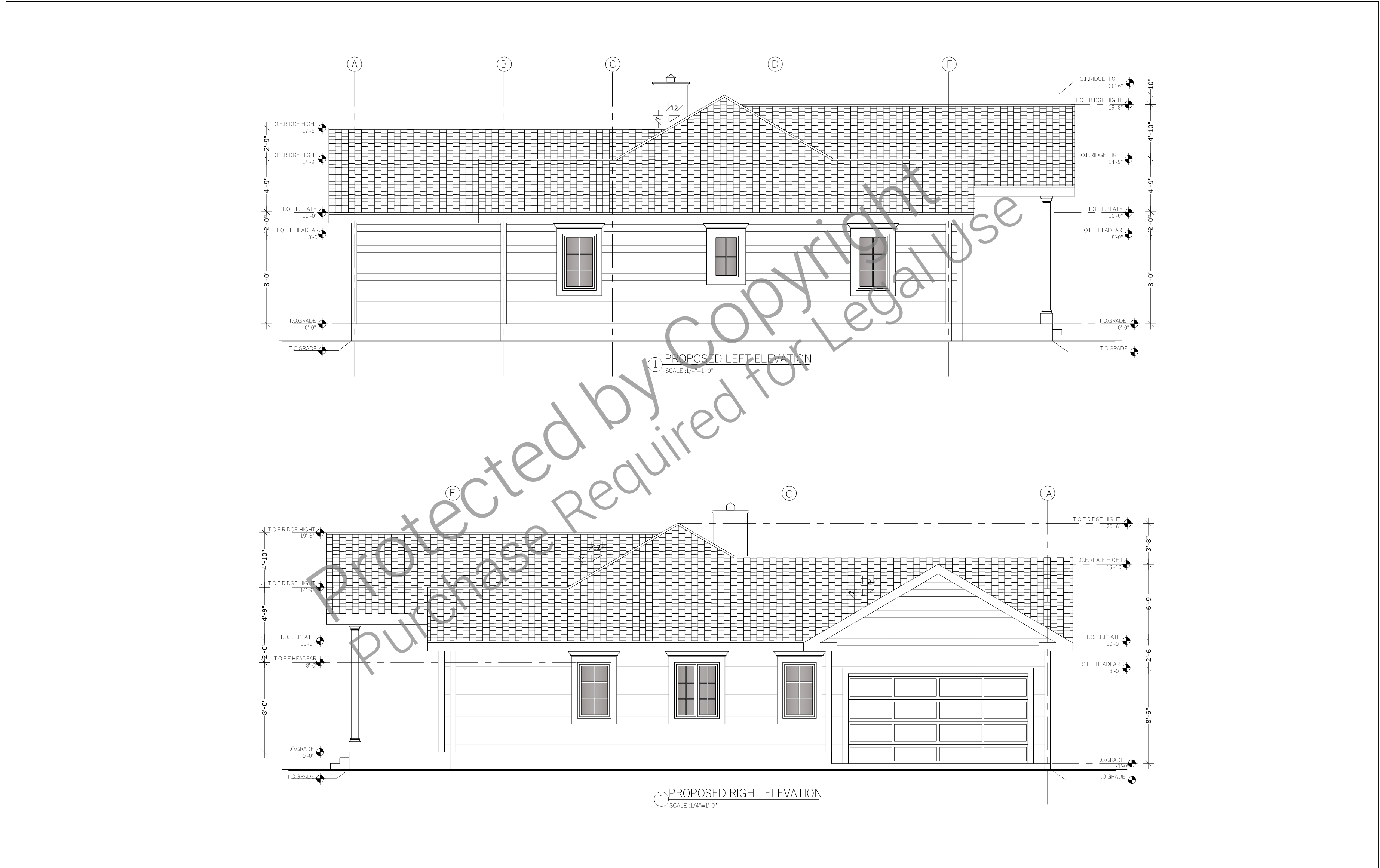
    • Left Side Elevation: Displaying windows, side access points, and external detailing.
    • Right Side Elevation: Complementing the overall design with additional architectural nuances.
These inclusions provide a complete visual and technical guide to the home's design, aiding buyers, builders, and planners alike

What's not included:

The blueprint package does not include the following items to maintain focus on the essential architectural details and reduce unnecessary costs for the buyer:

  1. Structural Engineering Plans: Specific details such as load calculations, foundation specifications, and reinforcement plans are not part of this blueprint and will require a licensed structural engineer.
  2. Mechanical, Electrical, and Plumbing (MEP) Plans: While general room layouts are provided, the design does not include detailed HVAC systems, electrical wiring schematics, or plumbing layouts.
  3. Interior Design Details: Furnishing styles, color palettes, material specifications, and decor suggestions are not included.
  4. Site Plans: The blueprint does not include custom site-specific plans such as grading, landscaping, or zoning compliance details.
  5. Permits and Approvals: Any local government permits, code compliance reviews, or approval processes are the responsibility of the buyer.
  6. Custom Modifications: The design is offered as-is. Any requested modifications or customizations may incur additional costs and require separate agreements.
  7. Construction Materials List: While dimensions and layouts are provided, a detailed materials or quantity take-off list for construction is not included.
  8. Builder Coordination: No direct consultation or on-site support with builders or contractors is included.
These exclusions ensure that the blueprint remains an accessible and cost-effective design package. For additional requirements, custom services may be available upon request. Let me know if you'd like this wording adjusted or included in a document.
 

Plan SFH-100-0040

Colonial-Style Home - 2,616 SF - 1-floor

Starting at $900

  • 2616 Heated Heated S.F.
  • 3  Beds Beds
  • 2 bath Bath
  • 0 basementBasement
  • 1 basement Floors
  • 2 car No. Of Cars
  • Attached car Car Garage

  • Design Style
  1. Colonial

  • Design Style
  1. Colonial

Description

Discover the perfect blend of timeless Colonial charm and modern functionality with this 2,616-square-foot home. Designed to offer elegance and comfort, this one-story layout caters to both family living and sophisticated entertaining, making it an ideal choice for today’s homebuyer.
The central living area serves as the heart of the home, with a spacious great room featuring a cozy fireplace framed by custom-built shelves. Adjacent, the formal dining area flows effortlessly into a covered patio, creating a seamless indoor-outdoor space perfect for hosting gatherings or enjoying quiet evenings. The kitchen, positioned for convenience and style, boasts a large island with seating for four, a walk-in pantry for ample storage, and a bright breakfast nook framed by charming bay windows.
On one wing, the primary suite offers a private retreat with a generously sized bedroom and seating area. The en-suite bathroom exudes luxury, featuring a double vanity, soaking tub, walk-in shower, and private toilet room. A walk-in closet with built-in organizers completes this serene sanctuary. On the opposite wing, two well-sized secondary bedrooms with large closets share a full bathroom with dual sinks, ensuring comfort and privacy for family or guests.
The design includes a versatile home office near the entryway, bathed in natural light from large windows. Whether used as a workspace, library, or guest room, this space adds flexibility to the layout. Practical utility areas, such as a laundry room with built-in cabinetry and a mudroom equipped with cubbies and hooks, keep daily life organized and efficient.
The two-car garage provides additional storage and direct access to the mudroom, ensuring functionality meets convenience. Meanwhile, the classic Colonial-style foyer welcomes you with wainscoting and crown molding, setting a tone of understated elegance as you step into the grand central hallway.
This thoughtfully designed home offers more than just living space—it provides a lifestyle that blends traditional aesthetics with contemporary needs. Whether you’re starting a family or looking to upgrade, this layout is an exceptional choice for those who value both charm and practicality.
 

What's included:

The blueprint for this Colonial-style home includes the following detailed plans and views to ensure comprehensive understanding and visualization of the design:

  1. Floor Plan: A detailed layout of the home's interior spaces, including room dimensions, furniture placement suggestions, and functional areas.
  2. Roof Plan: A precise depiction of the roof's structure, including slopes, ridges, valleys, and materials, ensuring both aesthetic appeal and structural integrity.
  3. Four Elevations:
    • Front Elevation: Showcasing the elegant Colonial-style facade with symmetrical design, classic wainscoting, and crown molding details.
    • Rear Elevation: Highlighting outdoor spaces like the covered patio and rear architectural features.
    • Left Side Elevation: Displaying windows, side access points, and external detailing.
    • Right Side Elevation: Complementing the overall design with additional architectural nuances.
These inclusions provide a complete visual and technical guide to the home's design, aiding buyers, builders, and planners alike

What's not included:

The blueprint package does not include the following items to maintain focus on the essential architectural details and reduce unnecessary costs for the buyer:

  1. Structural Engineering Plans: Specific details such as load calculations, foundation specifications, and reinforcement plans are not part of this blueprint and will require a licensed structural engineer.
  2. Mechanical, Electrical, and Plumbing (MEP) Plans: While general room layouts are provided, the design does not include detailed HVAC systems, electrical wiring schematics, or plumbing layouts.
  3. Interior Design Details: Furnishing styles, color palettes, material specifications, and decor suggestions are not included.
  4. Site Plans: The blueprint does not include custom site-specific plans such as grading, landscaping, or zoning compliance details.
  5. Permits and Approvals: Any local government permits, code compliance reviews, or approval processes are the responsibility of the buyer.
  6. Custom Modifications: The design is offered as-is. Any requested modifications or customizations may incur additional costs and require separate agreements.
  7. Construction Materials List: While dimensions and layouts are provided, a detailed materials or quantity take-off list for construction is not included.
  8. Builder Coordination: No direct consultation or on-site support with builders or contractors is included.
These exclusions ensure that the blueprint remains an accessible and cost-effective design package. For additional requirements, custom services may be available upon request. Let me know if you'd like this wording adjusted or included in a document.