What's included:

Here’s what’s included in the blueprint package for this Cape Cod-style home:

  • Floor Plan: Detailed layout of the home, including room dimensions, furniture placement suggestions, and traffic flow optimization.
  • Roof Plan: Comprehensive roof layout showing gabled roof designs, slopes, and drainage solutions.
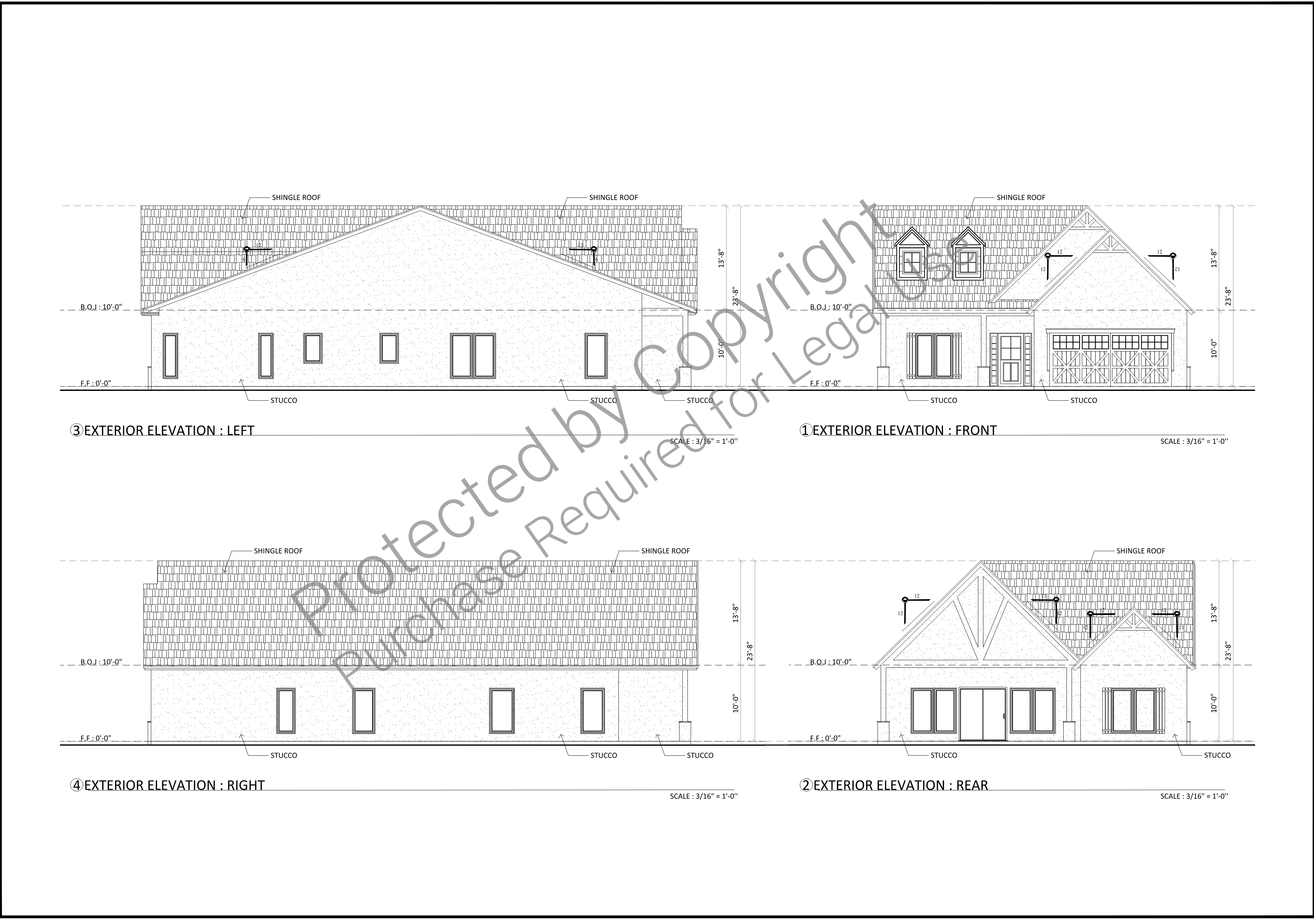
  • Exterior Elevations: Visuals for all exterior sides of the home, showcasing the traditional Cape Cod architectural style, window placement, and finishing details.
  • Construction Notes and Specifications: Essential guidelines, materials, and code compliance details to assist builders during construction.
This package provides all the necessary information and details to visualize a stunning Cape Cod-style home and customize as needed to fit your needs

What's not included:

Here’s what’s not included in the blueprint package for this Cape Cod-style home:

  • Site Plan: The blueprints do not include a lot-specific site plan, which outlines property boundaries, grading, landscaping, or utility connections.
  • Engineering Calculations: Structural, electrical, or mechanical engineering calculations specific to local building codes are not part of the package.
  • Permitting Assistance: The package does not include services for obtaining local permits or addressing municipality-specific requirements.
  • Interior Design Details: Custom interior design elements, such as furniture selection, decor, or color schemes, are not included.
  • Custom Modifications: Alterations or customizations to the existing plans must be requested separately and are not part of the standard blueprint.
  • 3D Renderings: While the package includes elevations, it does not provide photorealistic 3D renderings of the home.
  • Utilities Design: Detailed plans for septic systems, wells, or other site-specific utility designs are not included.
  • Construction Labor or Materials: The package provides the designs but does not include physical construction services, labor, or material supplies.
  • Warranty or Liability: The plans come as-is and do not include guarantees or liability coverage for construction errors or deviations.
This information ensures clarity on what to expect and what additional resources or services you may need to complete the construction process.
 

Plan SFH-100-0041

Cape Cod-Style Home - 1,550 SF - 1-floor

Starting at $650

  • 1550 Heated Heated S.F.
  • 3  Beds Beds
  • 2 bath Bath
  • 0 basementBasement
  • 1 basement Floors
  • 2 car No. Of Cars
  • Attached car Car Garage

  • Design Style
  1. Cape Cod

  • Design Style
  1. Cape Cod

Description

Discover the perfect blend of classic charm and modern convenience with this thoughtfully designed Cape Cod-style home. Encompassing 1,550 square feet of single-floor living, this home is crafted to meet the needs of families, retirees, or first-time buyers looking for a cozy yet functional space.
Step inside to a spacious living room where natural light pours through large front-facing windows. A central fireplace creates a warm and inviting atmosphere, making it an ideal spot for relaxing or entertaining. Flow seamlessly into the adjacent dining area, designed to connect effortlessly with the kitchen. Whether you prefer a U-shaped or L-shaped layout, the kitchen is equipped with modern appliances, abundant cabinetry, a breakfast bar, and a pantry to inspire your inner chef.
The primary bedroom suite offers a private oasis, complete with a walk-in closet and a luxurious en-suite bathroom featuring a double vanity and a spacious shower. On the opposite side of the home, two additional bedrooms ensure privacy and comfort for family members or guests. These rooms share a well-appointed full bathroom with a tub and shower combination.
This home doesn’t just stop at the essentials. A dedicated home office or flex room near the front entrance provides the versatility you need, whether you're working remotely, hosting guests, or seeking a peaceful retreat. The nearby laundry room and mudroom enhance everyday practicality, offering storage and organization solutions to keep life running smoothly.
Outside, a rear patio or deck invites you to enjoy outdoor dining or relaxation, all while surrounded by the timeless Cape Cod aesthetic. Symmetrical windows, gabled roofs, and modern energy-efficient finishes come together to create a home that is as beautiful as it is functional.
Designed with an open-concept layout and efficient use of space, this home prioritizes comfort and accessibility without compromising on style. Whether you're starting a family, downsizing, or seeking your first home, this Cape Cod treasure is ready to welcome you.
 

What's included:

Here’s what’s included in the blueprint package for this Cape Cod-style home:

  • Floor Plan: Detailed layout of the home, including room dimensions, furniture placement suggestions, and traffic flow optimization.
  • Roof Plan: Comprehensive roof layout showing gabled roof designs, slopes, and drainage solutions.
  • Exterior Elevations: Visuals for all exterior sides of the home, showcasing the traditional Cape Cod architectural style, window placement, and finishing details.
  • Construction Notes and Specifications: Essential guidelines, materials, and code compliance details to assist builders during construction.
This package provides all the necessary information and details to visualize a stunning Cape Cod-style home and customize as needed to fit your needs

What's not included:

Here’s what’s not included in the blueprint package for this Cape Cod-style home:

  • Site Plan: The blueprints do not include a lot-specific site plan, which outlines property boundaries, grading, landscaping, or utility connections.
  • Engineering Calculations: Structural, electrical, or mechanical engineering calculations specific to local building codes are not part of the package.
  • Permitting Assistance: The package does not include services for obtaining local permits or addressing municipality-specific requirements.
  • Interior Design Details: Custom interior design elements, such as furniture selection, decor, or color schemes, are not included.
  • Custom Modifications: Alterations or customizations to the existing plans must be requested separately and are not part of the standard blueprint.
  • 3D Renderings: While the package includes elevations, it does not provide photorealistic 3D renderings of the home.
  • Utilities Design: Detailed plans for septic systems, wells, or other site-specific utility designs are not included.
  • Construction Labor or Materials: The package provides the designs but does not include physical construction services, labor, or material supplies.
  • Warranty or Liability: The plans come as-is and do not include guarantees or liability coverage for construction errors or deviations.
This information ensures clarity on what to expect and what additional resources or services you may need to complete the construction process.